【30坪以下】狭い土地でも諦めない間取りアイデア
こんにちは!ハウスマイルスタッフの齋藤です!
齋藤、久々のブログ更新です!
(以前投稿した記事、MBTI診断で理想の家づくり?のページはこちら←)
先日、自社の「お家のラインナップ(プラン)」を何気な~く見ていた時のことなんですが、
「えっ!この坪数でこんなことできちゃうの!?」 と、思わず二度見してしまうくらいビックリした間取りがあったんです!
「これは家づくりを考えている皆さんに、ぜひ教えたい!!」となり、
今回は・・・デデン!
「狭い土地(狭小住宅)」可能性の間取りについて書いていこうと思います!
ふかめる2階建て3LDKタイプ(Arie)
こちらは、30坪以下の間取りになります!
よくある3LDKなんじゃないの?と思われた方いませんか?!
下の間取りをよーく見てみてください!
(画像をタッチor2本の指で広げると見やすいです)

何とゲーミングルームたるものが!!
ゲーム大好きの齋藤にとっては天国です!本当に。
もちろん、ゲーミングルームだけじゃなく、寝室、書斎、推し活コレクション部屋、などにも出来ますよ!
「それならだたの3LDKじゃない?」って思った方も多いはず!
実はゲーミングルームの横の吹き抜けの場所はバルコニーにもなるんです!

バルコニーでBBQ、バルコニーを繋げたペットライフなど、スタイルに合わせてアレンジできます!
今ほど建売を購入して後悔している日はありません(泣)
3プラン載せておきますので、じっくりご覧ください!

施工床面積97.29㎡(29.42坪)延床面積85.29㎡(25.79坪)1F床面積46.37㎡2F床面積38.82㎡
ふたりスタイルの家(ロフト空間のある家)(Arie)
ふたりと書いてありますが、工夫次第ではご家族でも住めます!
では早速下のビックリ間取りをご覧ください!

ん~・・・、ストレージ…
1階にストレージ7帖?…
ストレージ!
その名もストレージ大きすぎる家です!(違います。)
実は平屋なのですが、寝室は流行りのスキップフロア。
この「ロフト空間のある家」では勾配天井を生かした空間だけでなく、一部半階上げたスキップフロアを採用しています!
また収納を充実させつつ、スタイリッシュな空間を実現していて、
寝室下のストレージはリビングから横に入るのでとっても使いやすく、重いものでも安心です!!
平屋侮れない!!

外観イメージ
注意なのは、このロフトには窓がないので寝室にするのはオススメしません!
ただ、こういう感じにしたいんだけど、どうかな?と聞いてくだされば、出来る限りのことはさせていただきます!
こちらも3プラン載せておきますね!

MAIN&B PLAN
施工床面積64.58㎡(19.53坪)延床面積59.62㎡(18.03坪)1F床面積59.62㎡
PLAN C
施工床面積62.92㎡(19.03坪)延床面積57.96㎡(17.53坪)1F床面積57.96
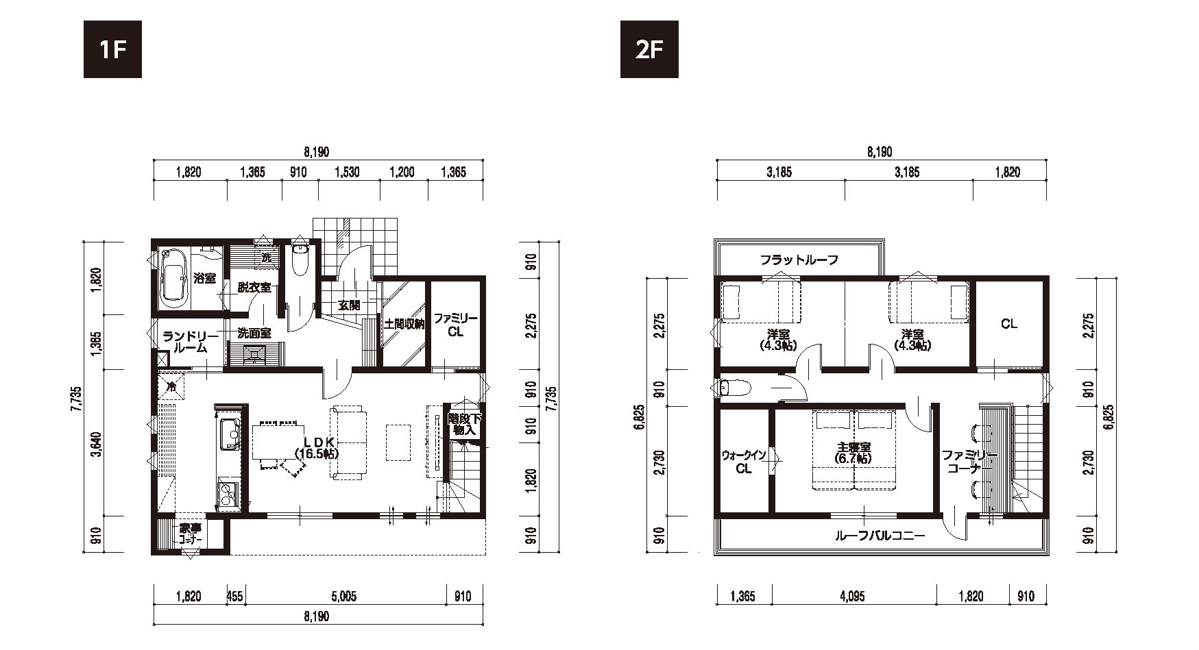
家事収納の家(Arie)
家事収納って、家事動線と収納でそのままです!
ただ見れば見るほど面白くて、ズボラー代表として、もう直接会ってここ凄いです!ってお伝えしたいくらいです!
必ず玄関から入ることをイメージしながら、間取りをご覧ください!

玄関からリビング・・・
ん?こっちにも行ける?
玄関→洗面所→ランドリールーム→キッチン・・・おー導線すごい!
そして収納の数ですよね!
土間収納、ファミリークローゼット、ランドリールーム、家事コーナー(パントリー)階段下収納、
2Fへいっても、納戸、ウォークインクローゼット、ファミリーコーナー?!
社長欲張り過ぎじゃないですか?!
楽しい!!見ているだけでも楽しいのに、実際に住めたら本当に幸せだろうなぁ。
こちらは、実はプランが6プランあるのですが、ご覧いただいたのはメインのプランになります。
コンパクトプランというものも、ちゃんとあります!
今回はメインプランを載せておきますが、ハウスマイルのHPにあるのでリンクを貼っておきますね!

まとめ
いかがでしたでしょうか。狭小でも全部諦める必要なんてないんです!このわくわく感を届けられたら嬉しいです!
今回ご紹介した以外にも、
他のスキップフロアとか、趣味部屋とか沢山ご紹介したい間取りがあるのですが、今回はこの辺りにしておきますね!
今回の間取りは、規格住宅の間取りになりますが、ハウスマイルではもちろん注文住宅も承っております!
気に入った間取りをみて、
「こんな間取り良いなぁ」「狭小でもこういうの出来るのかなぁ」「趣味スペースだけは絶対欲しい!」といったお悩みにも真摯に対応していきますので、お気軽にご相談くださいね!
間取り相談会も実施しております!↓↓
また次回、皆様にご紹介出来る日を楽しみにしております!
最後まで読んでいただき、ありがとうございました!
齋藤でした!






